Une chambre à Urrugne


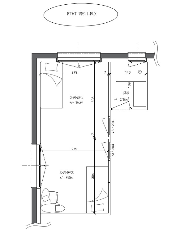
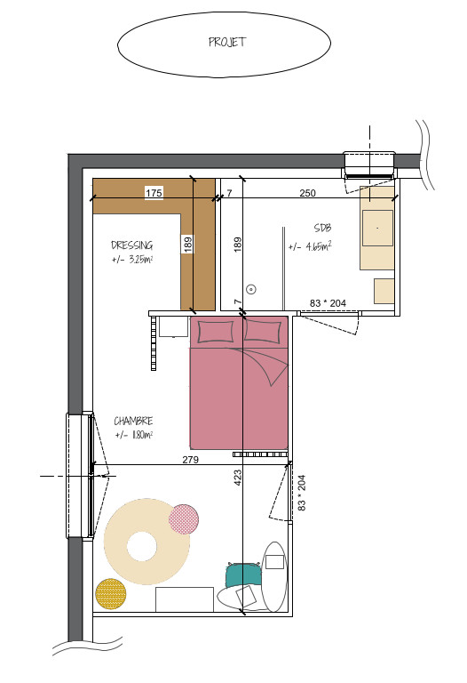
Ici le défi était de transformer deux petites chambres en une tout en agrandissant la salle de bain. Pour le relever, nous avons décalé une cloison de la salle de bain vers l’ancienne chambre puis créer un beau dressing à la place d’une partie de cette dernière afin de créer un plus grand espace chambre. Pour créer un effet cocon, nous avons délimité plusieurs espaces : un emplacement bureau, un espace lecture souligné par un aplat de peinture rose et un coin sommeil entouré de claustra.


Avant

urrugne_av_1
plan_avant
urrugne_av_2

Aprés

urrugne2
plan_apres
urrugne1
urrugne_3